资讯首页 新房资讯 价值挖掘 心灵鸡汤 楼市焦点 本地楼市 国内楼市 消息政策 宏观资讯 人物专访 金融财经 二手资讯 看房日記

卓越蔚蓝海岸售楼中心

惠房站 2019-09-02 阅读 评论


卓越东部蔚蓝海岸售楼中心位于大亚湾石化大道66号,项目毗邻深圳坪山,距离深圳坪山国家级生物产业园仅约3.5公里。在国家打造国际级”粤港澳大湾区”及深圳1.4万亿东进战略的推动下,大大提升了大亚湾与深圳经济战略融合。目前,大亚湾已经形成一条新的深圳东进战略发展中轴线。南坪快速三期将向东延伸,与惠州大亚湾高速公路网系统相接。深圳地铁14号线深圳段规划至坑梓站与沙田站,已于2018年1月正式动工,预计2022年建成通车。


卓越蔚蓝海岸


卓越东部蔚蓝海岸规划有约27万m2社区园林,香樟大道贯穿整个社区,项目已建成2个篮球场 ,2个景观泳池,四期约4万m的公园式园林,七期规划儿童亲子乐园式园林。五期钱水岸品质美居,墅壙品质,拥揽坪山河一线水票,水景、墅景、园林尽收眼下,尊享至溱景观视野。卓越东部蔚蓝海岸五期采用品质精装交楼。卫浴空间系统.厨房储物系统等.打造高品质、舒适、人性化的居家生活空展示开四心区城园间 让业主享受美观 科学与和谐的人居状态。开发商直销楼盘,无中介费用,预约看房尊享VIP优惠,免费专车接送,外省客户购房成功可凭机票、高铁票等报销路费,自驾客户送油卡。


        卓越东部蔚蓝海岸以“缘聚蔚蓝”、“心安蔚蓝”、“情归蔚蓝”为理念,建设社区核心文化。在设置者年活动中心的同时,成立业主爱好群,社区广场舞团体等,致力于丰富蔚蓝业主的社区生活.共建邻里同乐的蔚蓝社区.联合物业,通过举办端午邻里宴中秋晚会、业主生日会等活动,为有缘同住在蔚蓝社区的业丰们提供一个彼此认识,相互熟悉,增进邻里感情的平台。五期更有规划”社区邻里会客厅”式园林.从孩童到老年,旨在让每-位业主在社区家园里即能贴近自然,和睦亲近 ,拥有舒适宜人的本真生活。


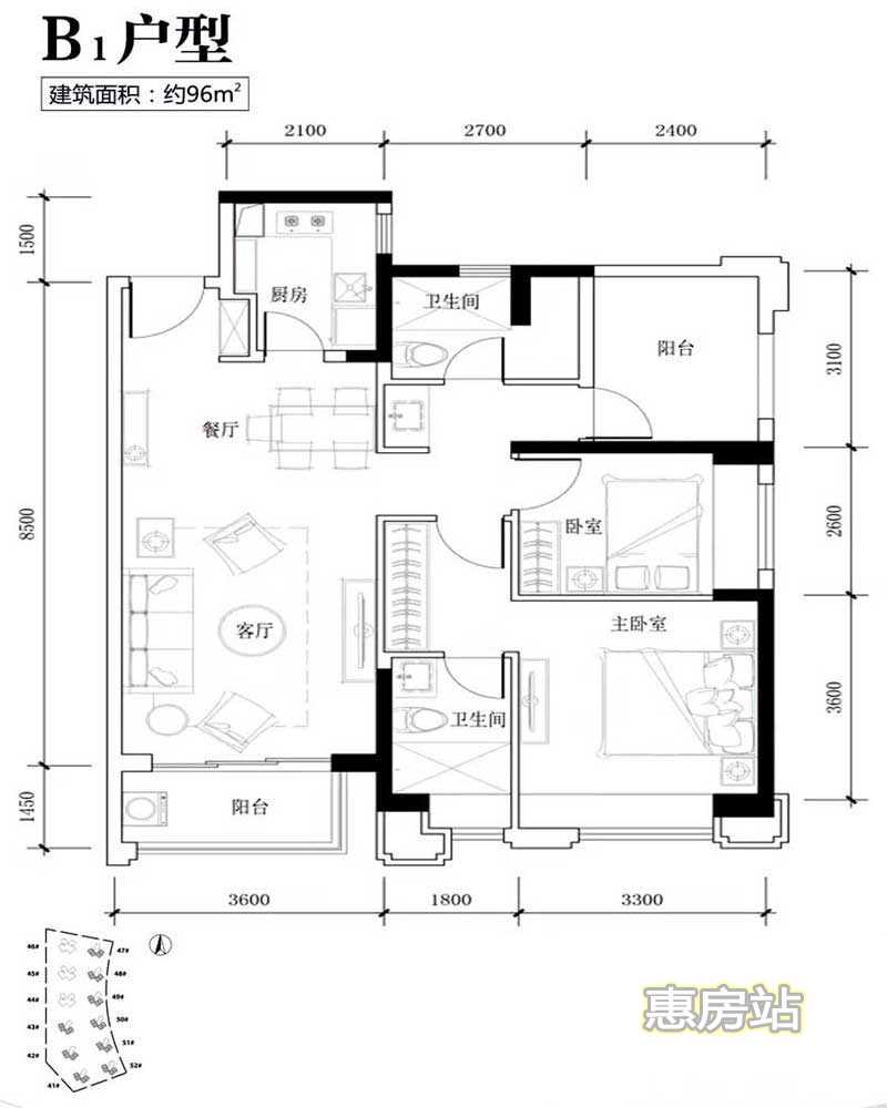
部分热销户型

2+1房2厅2卫-96.jpg



3+1房2厅2卫-126.jpg


卓越东部蔚蓝海岸花园

北师大学府大城,水岸墅境美宅

卓越东部蔚蓝海岸花园   均价:¥ 13000元/m² (1207元/呎²)

预约拼团低至¥9800元/㎡起

点击查看详情 >> 点击

卓越东部蔚蓝海岸花园相关资讯频道

惠房站 > 惠州楼盘 > 大亚湾楼盘 > 卓越东部蔚蓝海岸花园楼盘资讯

 

卓越东部蔚蓝海岸花园相关资讯频道,提供卓越东部蔚蓝海岸花园楼盘详情,地址,开发商,卓越东部蔚蓝海岸花园售楼处电话,发展商物业公司,绿化率,商场,超市,周边配套,学校,开盘交房时间,户型图,实景图,样板房装修效果图,惠州房价,大亚湾房价,规划发展前景,卓越东部蔚蓝海岸花园最新房价格,医院,银行,地铁规划,周边交通等楼盘最新信息,大亚湾学区划分,积分入学政策,惠州 大亚湾热门楼盘排行榜,惠州楼盘排名前十,卓越东部蔚蓝海岸花园怎么样,值不值得投资, 惠房站全面提供参考信息。